Unsere Bürgerhalle
für Herongen
| |
|
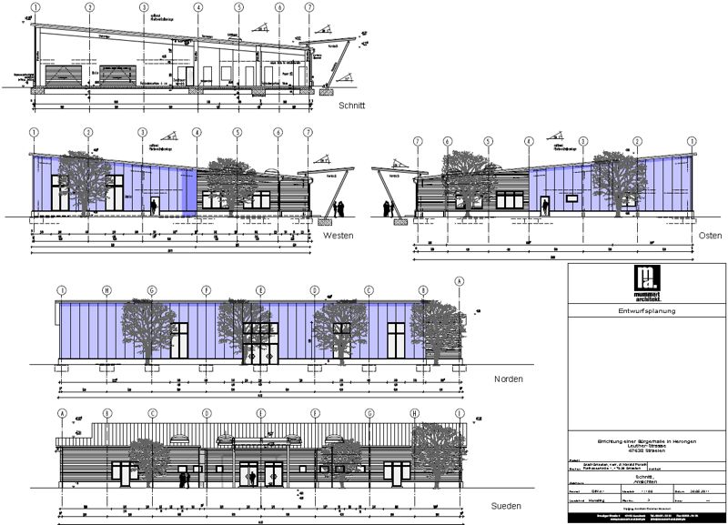
Auf dieser Seite zeigen wir
ihnen die ersten Entwürfe und Zeichnungen der
Bürgerhalle Herongen.
Entworfen und gezeichnet wurden sie vom Architekturbüro
Mummert aus Sonsbeck. |
 |
 |
 |
| |
|
 |
| |
|
 |
|
|
Haben Sie Fragen an uns oder benötigen weitere Informationen
?
Senden sie uns doch einfach eine Email ... |
|
|
Startseite/Home |
Copyright: Gesellige Vereine e.V., Herongen
02.09.2011 |
Impressum |
|